MARINA DI ARDEA - VILLINO CON GIARDINO

MARINA DI ARDEA - VILLINO CON GIARDINO

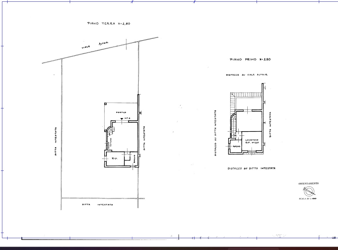
Descrizione

MARINA DI ARDEA e precisamente in Viale Colle Romito, in un comprensorio ottimamente curato, ben collegato ai principali servizi (scuole e negozi), Alpha Immobiliare propobe in vendita delizioso villino ideale per famiglie che cercano un ambiente rilassante.
Il villino di 86 mq. è composto al piano terra da soggiorno con camino, portico esterno, cucina abitabile e servizio.
Al piano primo, 2 camere da letto, servizio e terrazzo con affacci nel verde.
Il villino è circondato da un giardino con entrata carrabile di 250 mq con doccia esterna e un comodo ripostiglio,
patio di 18 mq
Riscaldamento autonomo e aria condizionata.
APE G

Prezzo richiesto Euro 170.000,00


Vuoi vendere o affittare la tua casa?
Ascoltare, capire le esigenze del cliente, i suoi bisogni, le sue aspettative, la sua personalità, per adempiere ad un obiettivo delicato, mai scontato, mai banale, quanto mai complesso: la casa, un luogo intimo, fatto di emozioni, di persone, fatto di vita.

È ciò di cui la nostra agenzia si occupa, quotidianamente impegnata nel fornire un'assistenza completa a 360 gradi nell'universo immobiliare romano e non solo. Attraverso il dialogo, la condivisione dettagliata di ogni singola esigenza ed un know-how maturato in oltre 30 anni di esperienza siamo in grado di assistere i nostri clienti fino alla stipula del rogito notarile.

Non venditori ma partner: correttezza e trasparenza sono i valori che ispirano il nostro staff.

Aver contribuito ed aver guidato i nostri clienti nel difficile percorso della scelta o della vendita della propria casa è per noi il maggior riconoscimento della nostra passione.


Potete contattare Alpha Immobiliare al numero 0658331153 per maggiori informazioni e prenotazioni appuntamenti, anche tramite messaggio Whatsapp oppure sul sito www.alphaimmobiliare.com sarà possibile visionare tutte le nostre disponibilità.

Le presenti informazioni e planimetrie sono indicative e non costituiscono elementi contrattuali.

L' ALPHA IMMOBILIARE ti offre tutti i servizi per arrivare alla conclusione dell'affare nella più totale serenità. Affidandoti alla nostra esperienza e professionalità potrai vendere o affittare il tuo immobile sicuro di essere sempre affiancato e consigliato da validi consulenti in ogni fase della trattativa. Ti invitiamo a visitare il nostro sito e richiederci una consulenza gratuita e senza impegno.

2
2
G
n/d
n/d

Ambienti

Camere 2
Bagni 2
Soggiorno
Cucina
Ripostigli 1
Terrazzi 1
Giardino
Posto auto

Livelli e Comfort

Livelli Piano terra , Primo piano
Cucina arredata
Aria condizionata
Riscaldamento autonomo
Caldaia a condensazione
Ingresso indipendente
Animali ammessi
Porta blindata

Dettagli

Prezzo 170.000 €
Riferimento ARDEA
Comune Ardea
Zona Ardea Marina
Contratto Vendita
Mq 86
C.E
I.P.E 0 kWh/mq/anno

Condividi